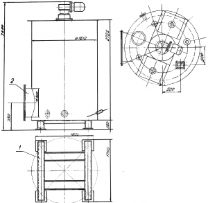
Параметры аппарата приготовления раствора кальцинированной соды
| Общие требования | |
| Производство | Производство кальцинированной соды |
| Технологическое назначение устройства | Интенсификация химических процессов, недопущение образования осадка |
| Параметры емкости | |
| Объём, м3 | 6,3 |
| Высота, мм | 2725 |
| Диаметр, мм | 1800 |
| Материал корпуса аппарата | ст3 |
| Параметры среды | |
| Состав и концентрация.% | 20-24% раствор Na2CO3 |
| Плотность, кг/м3 | 1200 |
| Динамическая вязкость, Па•с | 0,0022 |
| Класс опасности по ГОСТ 12.1.007-76 | 3 |
| Рабочее давление, Мпа | гидростатическое |
| Расчетное давление, Мпа | 0,01 |
| Рабочая температура среды, °С | 45-50 |
Для данного проекта была разработана трехлопастная вертикальная мешалка:

